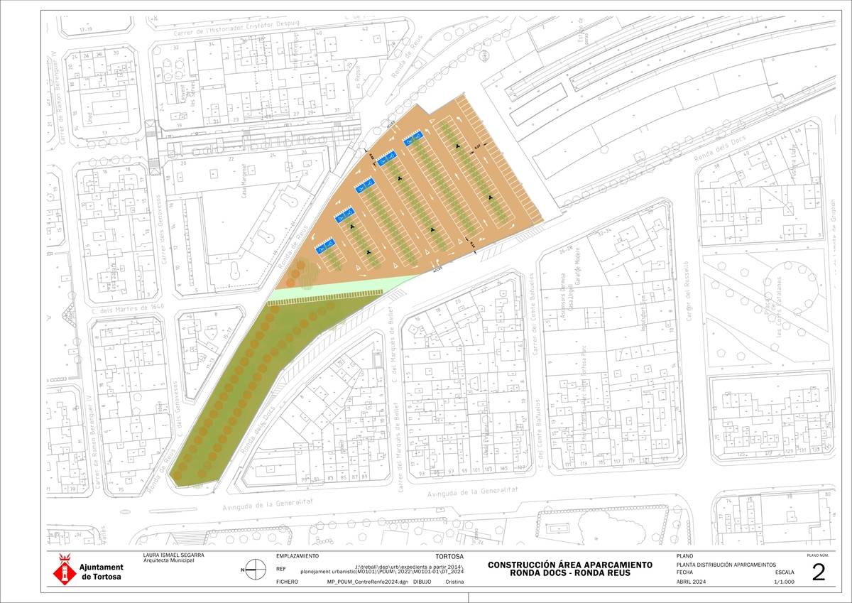
L'Ajuntament de Tortosa ha iniciat esta setmana les obres per habilitar un gran aparcament de 284 places amb una zona verda als antics terrenys de Renfe, al centre de la ciutat. Es tracta d'una actuació que ha estat adjudicada a l'empresa Also Casals per un import de 400.892 euros i amb un termini d'execució de quatre mesos. Concretament, l'aparcament tindrà 201 places per a cotxes i 83 per a motos, amb una doble entrada pel carrer Ronda Reus i pel carrer Ronda Docs. A més, s'habilitarà una zona enjardinada, a la zona més pròxima a l'avinguda de la Generalitat i un vial entre els carrers Màrtirs de 1640 i Ronda Docs que podrà ser utilitzat pels vehicles d'emergència.
S'està treballant en el desbrossament del terreny, una superfície de 10.364,45 metres quadrats. Els treballs consisteixen en eliminar el talús i rebaixar el terreny, que quedarà al mateix nivell que el carrer. "El nou aparcament permetrà ampliar les places disponibles al centre, recordem que l’aparcament del costat té un centenar de places i plena ocupació i ara amb les noves places donarem resposta a les necessitats del veïnat de la zona i, especialment, als clients del centre comercial", ha dit l'alcalde de Tortosa, Jordi Jordan.

- Plàning del segon aparcament als antics terrenys de Renfe.
- Ajuntament de Tortosa
Des de l'Ajuntament han remarcat que es tracta d'una actuació sostenible perquè s'utilitzen paviments drenants que permetran la infiltració d'aigua a través de la superfície i l'adequació d'una gran àrea verda, amb zones d'esbarjo. "No serà una macroplataforma de ciment com s'havia plantejat en el mandat anterior", ha assenyalat Jordan. A més, ha destacat que es tracta d'un projecte "molt més complet" que el presentat per Junts per Tortosa en el mandat anterior i que s'ha modificat per incloure una zona verda i ampliar l'àmbit d'actuació en més de 10.000 metres quadrats que permetrà "integrar" i reordenar millor el centre de la ciutat.
El consistori, a petició del sector comercial, està valorant la possibilitat que al nou aparcament s'hagi de fer "un pagament simbòlic" per fomentar la rotació de vehicles. El primer aparcament gratuït s'ha convertit en un aparcament "dormitori" de vehicles i s'estudia de quina manera evitar que passi el mateix amb el segon pàrquing dels terrenys de Renfe.
